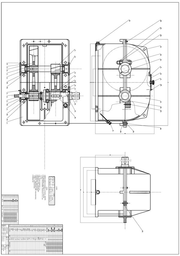
一级减速器零件图与装配图简介一级减速器是一种常见的机械传动装置,主要用于降低输入轴的转速并增大输出扭矩。其结构简单,通常由齿轮、轴、轴承、箱体、端盖等主要零件组成。零件图详细展示了减速器各个组成部分的结构、尺寸、公差及技术要求,包括主动齿轮轴、从动齿轮、轴承、箱体、端盖、密封件等。每张零件图均标注了加工精度、表面粗糙度、材料及热处理要求,确保零件制造符合设计规范。装配图则展示了所有零件的组装关系,标注了总体尺寸、配合要求及安装位置。通过装配图可以清晰了解减速器的工作原理,如齿轮啮合、轴承支撑及润滑方式等。装配图还包含技术要求,如装配间隙、密封性测试及运行试验等,确保减速器性能稳定可靠。这些图纸是减速器设计、制造与维护的重要依据,适用于机械设计、生产加工及教学参考等领域。
