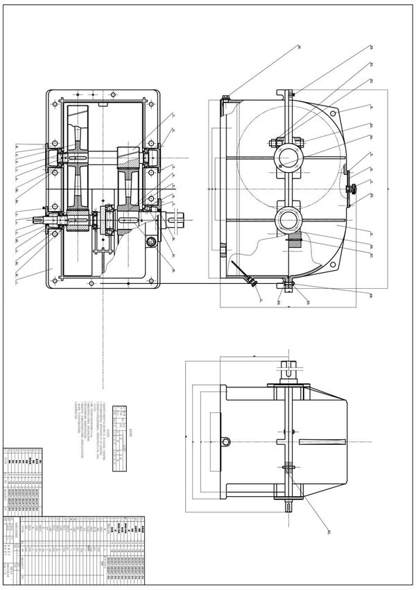
一级减速器零件图与装配图简介一级减速器是一种常见的机械传动装置,主要用于降低输入轴的转速并增大输出扭矩。其结构简单、传动效率高,广泛应用于工业设备、输送机械等领域。零件图详细展示了减速器各个组成部分的结构与尺寸,包括齿轮、轴、轴承、箱体、端盖等关键零件。通过零件图可以了解每个零件的形状、加工精度及装配关系,为制造和检验提供依据。装配图则完整呈现了减速器的整体结构,标注了各零件之间的装配关系、配合尺寸及技术要求。通过装配图可以直观了解减速器的工作原理、润滑方式及安装顺序,确保减速器能够正确组装并稳定运行。一级减速器零件图与装配图是设计、制造和维护的重要技术文件,为减速器的生产和使用提供了可靠的技术支持。
