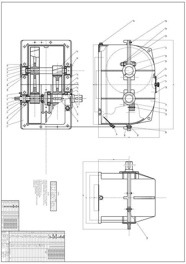
一级减速器零件图与装配图简介本套图纸为一款标准一级减速器的完整技术图纸,包含全套零件图和装配图。图纸采用国家机械制图标准绘制,尺寸标注完整,公差配合合理,技术参数齐全。零件图部分包含:-箱体、箱盖(HT200铸铁件)-齿轮轴(45钢调质处理)-大齿轮(45钢齿面淬火)-轴承端盖(HT150铸铁件)-密封件等标准件选型装配图清晰展示了:1.各零件的装配关系2.关键配合尺寸3.润滑系统布置4.装配技术要求5.性能参数表本套图纸经过生产验证,结构设计合理,加工工艺性好,可直接用于生产制造。图纸标注规范,符合GB/T14689-2008等最新制图标准,是机械设计学习的优质参考资料。
