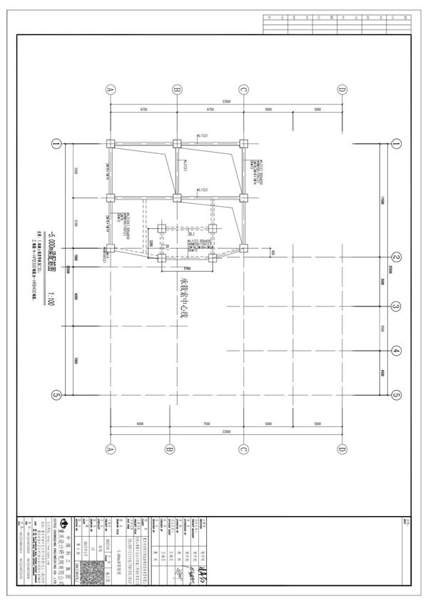
13-5.000m梁配筋图简介:本配筋图适用于标高为-5.000米的13号梁结构。图纸详细标注了梁的几何尺寸、混凝土强度等级、纵向受力钢筋布置、箍筋配置及间距要求等关键配筋信息。设计依据现行混凝土结构设计规范,确保梁的承载力、刚度和抗震性能满足要求。图中明确标示了支座负筋、跨中正筋的位置与规格,以及加密区箍筋的布置范围。施工时需严格按照本图配筋,并注意钢筋保护层厚度、锚固长度等构造要求。

13-5.000m梁配筋图简介:本配筋图适用于标高为-5.000米的13号梁结构。图纸详细标注了梁的几何尺寸、混凝土强度等级、纵向受力钢筋布置、箍筋配置及间距要求等关键配筋信息。设计依据现行混凝土结构设计规范,确保梁的承载力、刚度和抗震性能满足要求。图中明确标示了支座负筋、跨中正筋的位置与规格,以及加密区箍筋的布置范围。施工时需严格按照本图配筋,并注意钢筋保护层厚度、锚固长度等构造要求。

声明:资源收集自网络无法详细核验或存在错误,仅为个人学习参考使用,如侵犯您的权益,请联系我们处理。
不能下载?报告错误