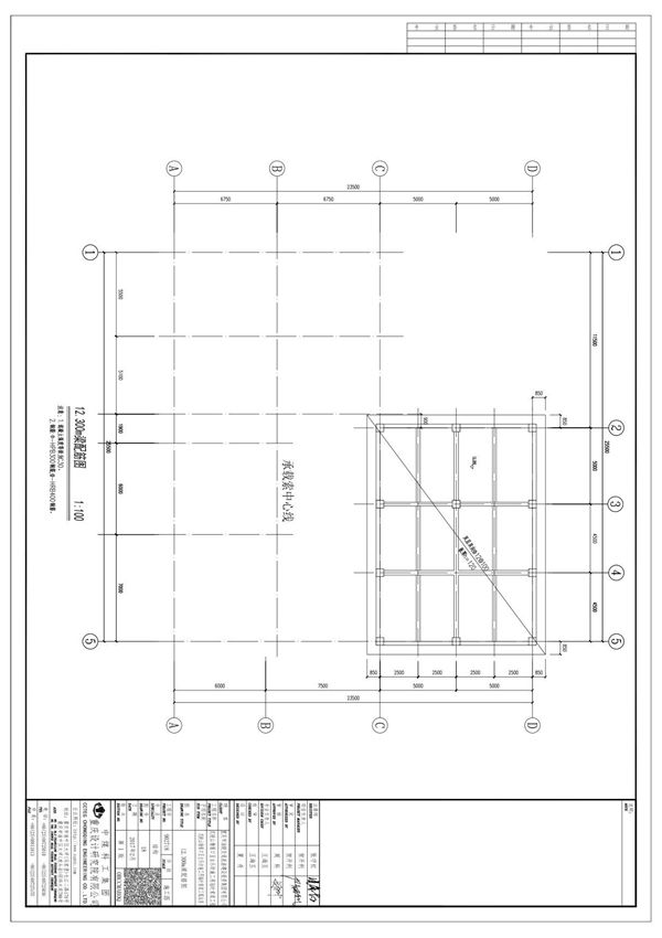
1812.300m梁配筋图简介:本图纸为18号梁的配筋详图,梁跨度为12.300米。图中清晰标注了梁的截面尺寸、纵向受力钢筋布置、箍筋配置及间距要求等关键配筋信息。通过本图可明确了解梁上部钢筋、下部钢筋的具体规格和数量,以及支座处的加强配筋要求。图纸严格遵循现行混凝土结构设计规范,确保梁的承载力和抗震性能满足设计要求。施工时请结合结构总说明及现行施工验收规范执行,特别注意钢筋锚固长度、搭接位置等构造要求。

1812.300m梁配筋图简介:本图纸为18号梁的配筋详图,梁跨度为12.300米。图中清晰标注了梁的截面尺寸、纵向受力钢筋布置、箍筋配置及间距要求等关键配筋信息。通过本图可明确了解梁上部钢筋、下部钢筋的具体规格和数量,以及支座处的加强配筋要求。图纸严格遵循现行混凝土结构设计规范,确保梁的承载力和抗震性能满足设计要求。施工时请结合结构总说明及现行施工验收规范执行,特别注意钢筋锚固长度、搭接位置等构造要求。
