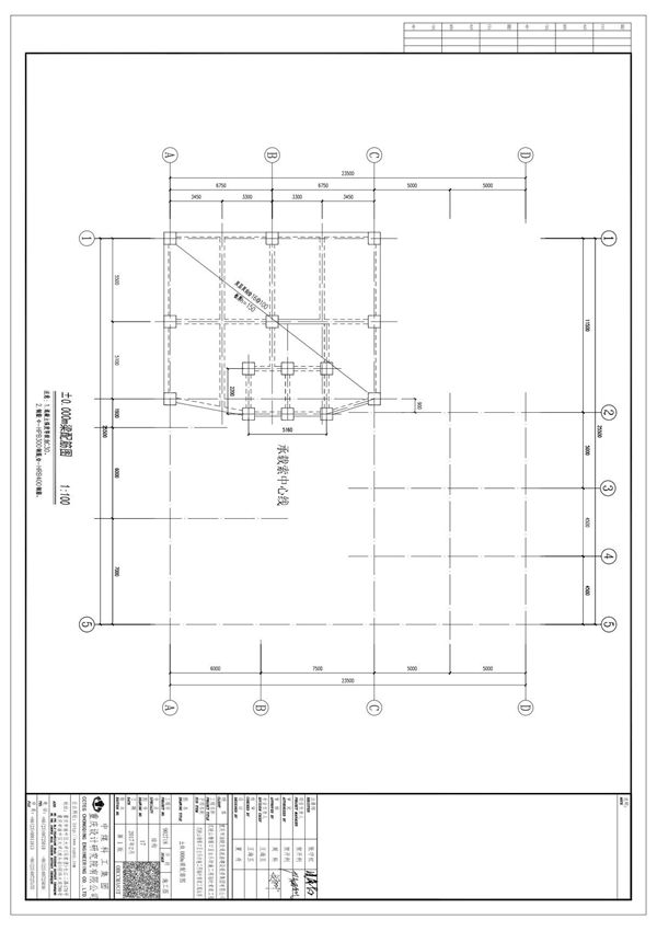
本配筋图适用于17米跨度的梁结构,设计精度为±0.000毫米。图中详细标注了梁的纵向受力钢筋、箍筋、架立筋等配筋信息,包括钢筋规格、间距、锚固长度等关键参数。同时注明了混凝土保护层厚度、梁截面尺寸及标高位置。施工时请严格按照图纸要求进行钢筋下料、绑扎和安装,确保结构安全可靠。如有疑问,请及时与设计单位沟通确认。

本配筋图适用于17米跨度的梁结构,设计精度为±0.000毫米。图中详细标注了梁的纵向受力钢筋、箍筋、架立筋等配筋信息,包括钢筋规格、间距、锚固长度等关键参数。同时注明了混凝土保护层厚度、梁截面尺寸及标高位置。施工时请严格按照图纸要求进行钢筋下料、绑扎和安装,确保结构安全可靠。如有疑问,请及时与设计单位沟通确认。

声明:资源收集自网络无法详细核验或存在错误,仅为个人学习参考使用,如侵犯您的权益,请联系我们处理。
不能下载?报告错误