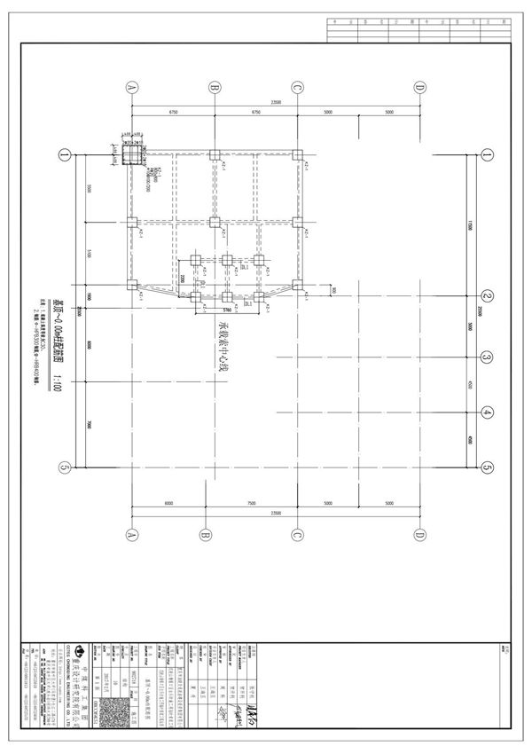
本配筋图针对10基顶0.00m柱进行设计,详细标注了柱体的钢筋配置信息。图中包含柱截面尺寸、纵向受力钢筋规格及数量、箍筋布置形式与间距等关键参数。所有钢筋均采用HRB400级螺纹钢,混凝土强度等级为C30。配筋设计严格遵循GB50010《混凝土结构设计规范》要求,确保结构安全性与抗震性能。施工时需注意钢筋锚固长度、保护层厚度等构造要求,并做好与基础及上部结构的可靠连接。

本配筋图针对10基顶0.00m柱进行设计,详细标注了柱体的钢筋配置信息。图中包含柱截面尺寸、纵向受力钢筋规格及数量、箍筋布置形式与间距等关键参数。所有钢筋均采用HRB400级螺纹钢,混凝土强度等级为C30。配筋设计严格遵循GB50010《混凝土结构设计规范》要求,确保结构安全性与抗震性能。施工时需注意钢筋锚固长度、保护层厚度等构造要求,并做好与基础及上部结构的可靠连接。

声明:资源收集自网络无法详细核验或存在错误,仅为个人学习参考使用,如侵犯您的权益,请联系我们处理。
不能下载?报告错误