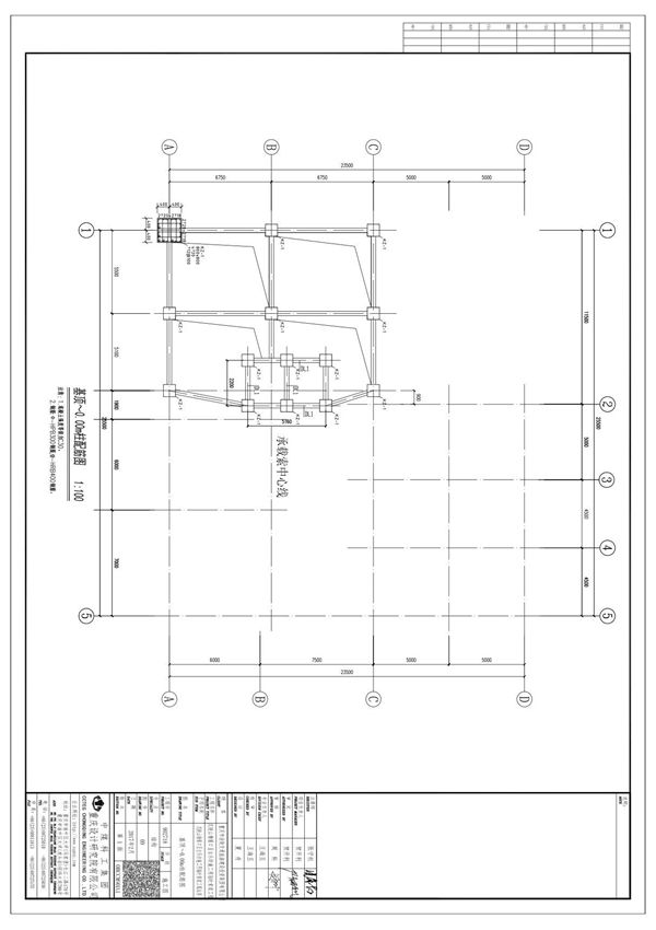
09基顶0.00m柱配筋图简介:本图纸为09号基顶0.00米标高处的柱配筋详图,主要展示该结构柱在基础顶面位置的钢筋配置情况。图纸内容包括柱截面尺寸、纵向受力钢筋规格及数量、箍筋布置形式及间距等关键配筋信息。该柱配筋设计满足结构承载力要求,符合相关规范规定,确保柱体在基础顶面位置的受力性能。施工时需严格按照本图进行钢筋下料、绑扎和安装,并注意与其他构件的钢筋连接。具体配筋参数详见图中标注,施工前应结合其他相关图纸综合理解。

09基顶0.00m柱配筋图简介:本图纸为09号基顶0.00米标高处的柱配筋详图,主要展示该结构柱在基础顶面位置的钢筋配置情况。图纸内容包括柱截面尺寸、纵向受力钢筋规格及数量、箍筋布置形式及间距等关键配筋信息。该柱配筋设计满足结构承载力要求,符合相关规范规定,确保柱体在基础顶面位置的受力性能。施工时需严格按照本图进行钢筋下料、绑扎和安装,并注意与其他构件的钢筋连接。具体配筋参数详见图中标注,施工前应结合其他相关图纸综合理解。

声明:资源收集自网络无法详细核验或存在错误,仅为个人学习参考使用,如侵犯您的权益,请联系我们处理。
不能下载?报告错误