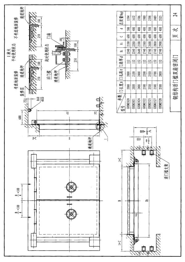
国标图集RFJ01-2008《人民防空工程防护设备选用图集》是由国家人民防空办公室批准发布的国家标准人防工程设计图集。该图集主要规定了人民防空工程中各类防护设备的选用标准、技术要求和安装方法,是人防工程设计、施工和验收的重要依据。图集内容涵盖防护设备的技术参数、构造详图、安装节点等内容,适用于新建、改建和扩建的人民防空工程。该标准对于确保人防工程的防护性能、提高工程质量和保障战时防护功能具有重要意义。如需获取电子版下载,建议通过正规渠道向国家人民防空办公室或其授权机构咨询,确保获取最新有效版本。使用时应严格遵守国家相关保密规定和版权要求。
