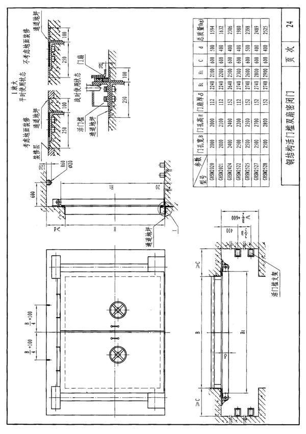
国家建筑标准设计参考图集RFJ01-2008《人民防空工程防护设备选用图集》是由国家相关部门批准发布的重要技术文件。该图集为人民防空工程中的防护设备选用提供了标准化的设计参考和技术指导,内容涵盖了各类防护设备的规格、性能参数、安装要求及选用原则等关键信息,适用于人防工程的设计、施工及验收环节。图集旨在确保人防工程防护设备的质量和性能符合国家安全标准,提升防护工程的可靠性和有效性。电子版图集的发布便于相关技术人员查阅和使用,推动了人防工程建设的规范化和标准化发展。

国家建筑标准设计参考图集RFJ01-2008《人民防空工程防护设备选用图集》是由国家相关部门批准发布的重要技术文件。该图集为人民防空工程中的防护设备选用提供了标准化的设计参考和技术指导,内容涵盖了各类防护设备的规格、性能参数、安装要求及选用原则等关键信息,适用于人防工程的设计、施工及验收环节。图集旨在确保人防工程防护设备的质量和性能符合国家安全标准,提升防护工程的可靠性和有效性。电子版图集的发布便于相关技术人员查阅和使用,推动了人防工程建设的规范化和标准化发展。

声明:资源收集自网络无法详细核验或存在错误,仅为个人学习参考使用,如侵犯您的权益,请联系我们处理。
不能下载?报告错误