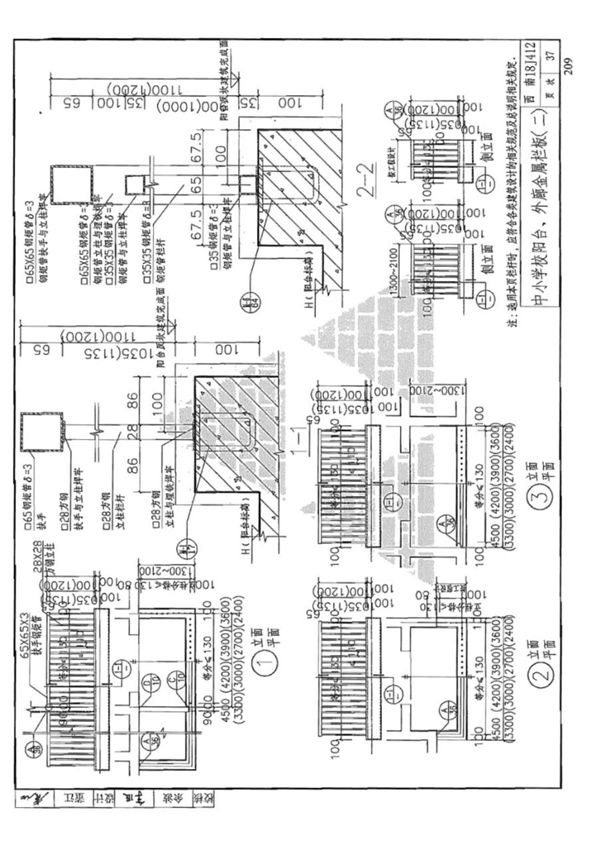
西南18J412阳台外廊楼梯栏杆图集是西南地区建筑标准设计通用图集系列中的一部分,主要针对阳台、外廊和楼梯栏杆的设计与施工提供了标准化的参考方案。该图集结合西南地区的地理、气候特点和建筑风格,详细展示了栏杆的结构形式、材料选用、连接方式及安装要求等内容,旨在确保建筑安全、美观且符合地方规范。适用于建筑设计、施工及监理等相关专业人员参考使用,有助于提高工程质量和效率。如需电子版下载,请通过正规渠道获取以确保文件的准确性和完整性。

西南18J412阳台外廊楼梯栏杆图集是西南地区建筑标准设计通用图集系列中的一部分,主要针对阳台、外廊和楼梯栏杆的设计与施工提供了标准化的参考方案。该图集结合西南地区的地理、气候特点和建筑风格,详细展示了栏杆的结构形式、材料选用、连接方式及安装要求等内容,旨在确保建筑安全、美观且符合地方规范。适用于建筑设计、施工及监理等相关专业人员参考使用,有助于提高工程质量和效率。如需电子版下载,请通过正规渠道获取以确保文件的准确性和完整性。

声明:资源收集自网络无法详细核验或存在错误,仅为个人学习参考使用,如侵犯您的权益,请联系我们处理。
不能下载?报告错误