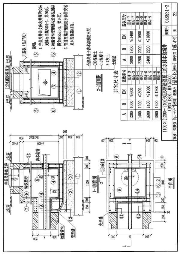
国家建筑标准设计图集04S531-3《湿陷性黄土地区给水排水检漏井》是针对湿陷性黄土地区给水排水工程中检漏井的设计与施工制定的标准图集。该图集详细规定了检漏井的结构形式、材料选用、施工工艺及技术要求,适用于湿陷性黄土地区的给水排水管道检漏井设计与施工。通过采用本图集的设计方案,可有效预防和减少湿陷性黄土地区因地基湿陷导致的管道泄漏问题,确保给水排水系统的安全运行。图集内容全面、实用性强,是湿陷性黄土地区给水排水工程设计、施工及验收的重要依据。

国家建筑标准设计图集04S531-3《湿陷性黄土地区给水排水检漏井》是针对湿陷性黄土地区给水排水工程中检漏井的设计与施工制定的标准图集。该图集详细规定了检漏井的结构形式、材料选用、施工工艺及技术要求,适用于湿陷性黄土地区的给水排水管道检漏井设计与施工。通过采用本图集的设计方案,可有效预防和减少湿陷性黄土地区因地基湿陷导致的管道泄漏问题,确保给水排水系统的安全运行。图集内容全面、实用性强,是湿陷性黄土地区给水排水工程设计、施工及验收的重要依据。

声明:资源收集自网络无法详细核验或存在错误,仅为个人学习参考使用,如侵犯您的权益,请联系我们处理。
不能下载?报告错误