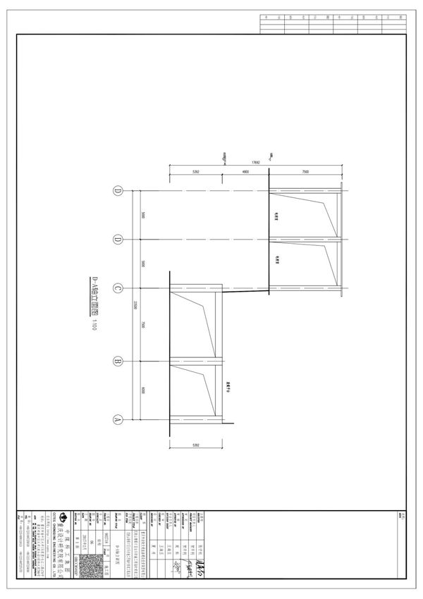
06D-A轴立面图展示了建筑在D轴至A轴方向上的垂直面外观设计。该立面图详细标注了门窗位置、外立面材料、装饰构件及竖向尺寸关系,清晰呈现了建筑在此视角下的形态特征、层高划分以及外部空间构成。图纸中通过不同线型区分了可见轮廓与隐藏结构,并注明了关键标高控制点,为施工提供了准确的外立面建造依据。

06D-A轴立面图展示了建筑在D轴至A轴方向上的垂直面外观设计。该立面图详细标注了门窗位置、外立面材料、装饰构件及竖向尺寸关系,清晰呈现了建筑在此视角下的形态特征、层高划分以及外部空间构成。图纸中通过不同线型区分了可见轮廓与隐藏结构,并注明了关键标高控制点,为施工提供了准确的外立面建造依据。
