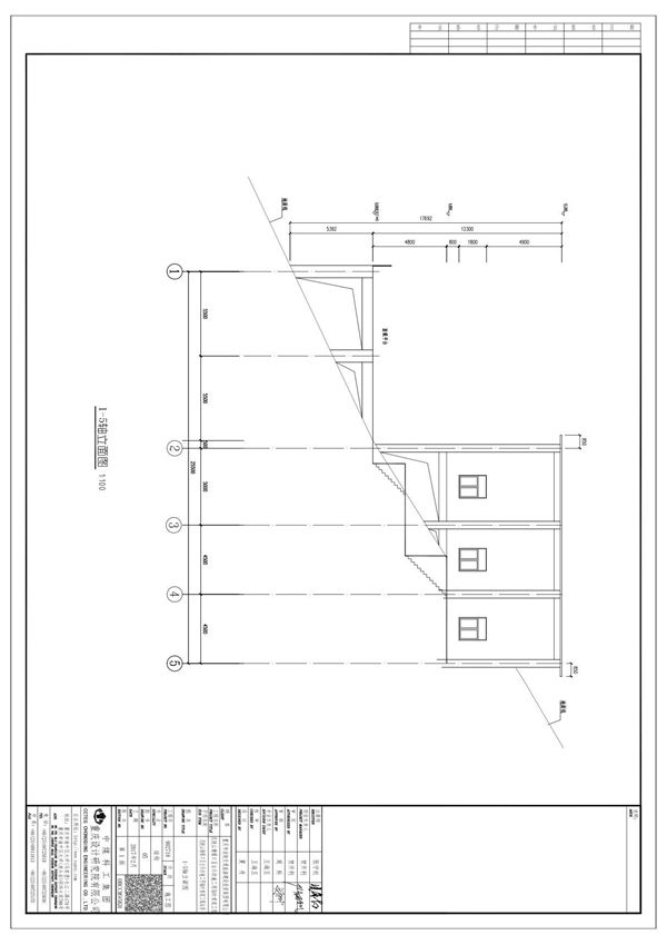
051-5轴立面图是建筑图纸中的重要组成部分,主要展示建筑物在1至5轴范围内的立面形态和外观特征。该图纸详细标注了门窗位置、外立面材料、装饰构件、标高尺寸等关键信息,能够清晰反映建筑在该轴线范围内的立面设计效果。施工人员可依据此图进行外立面施工,确保建筑外观与设计方案一致。图纸通常包含立面轮廓、材质标注、标高尺寸、节点索引等基本要素,是建筑施工和工程验收的重要依据文件。

051-5轴立面图是建筑图纸中的重要组成部分,主要展示建筑物在1至5轴范围内的立面形态和外观特征。该图纸详细标注了门窗位置、外立面材料、装饰构件、标高尺寸等关键信息,能够清晰反映建筑在该轴线范围内的立面设计效果。施工人员可依据此图进行外立面施工,确保建筑外观与设计方案一致。图纸通常包含立面轮廓、材质标注、标高尺寸、节点索引等基本要素,是建筑施工和工程验收的重要依据文件。
