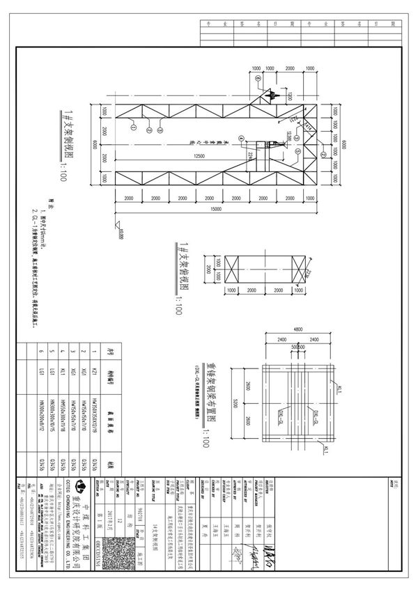
121#支架侧视图展示了该支架的侧面结构设计,主要呈现了支架的高度、厚度、支撑角度以及连接部位的细节。通过侧视图可以清晰观察到支架的轮廓形状、加强筋位置、安装孔分布等关键特征,便于工程人员了解其结构强度和安装方式。该视图通常标注有主要尺寸参数,是支架制造和装配的重要参考依据。

121#支架侧视图展示了该支架的侧面结构设计,主要呈现了支架的高度、厚度、支撑角度以及连接部位的细节。通过侧视图可以清晰观察到支架的轮廓形状、加强筋位置、安装孔分布等关键特征,便于工程人员了解其结构强度和安装方式。该视图通常标注有主要尺寸参数,是支架制造和装配的重要参考依据。

声明:资源收集自网络无法详细核验或存在错误,仅为个人学习参考使用,如侵犯您的权益,请联系我们处理。
不能下载?报告错误