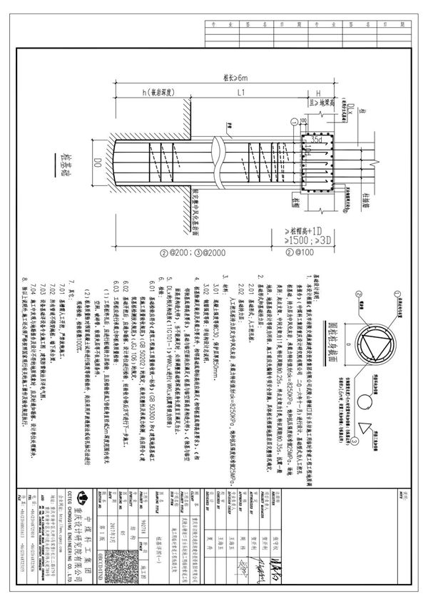
05桩基详图(一)是桩基础工程的重要施工图纸,主要用于指导桩基施工。本图纸详细标注了桩的平面布置、桩径、桩长、桩顶标高、配筋等关键参数,同时明确了桩身材料、施工工艺及质量控制要求。图纸内容符合相关规范标准,确保桩基承载力与结构安全。施工前应结合地质勘察报告仔细核对,严格按图施工。

05桩基详图(一)是桩基础工程的重要施工图纸,主要用于指导桩基施工。本图纸详细标注了桩的平面布置、桩径、桩长、桩顶标高、配筋等关键参数,同时明确了桩身材料、施工工艺及质量控制要求。图纸内容符合相关规范标准,确保桩基承载力与结构安全。施工前应结合地质勘察报告仔细核对,严格按图施工。

声明:资源收集自网络无法详细核验或存在错误,仅为个人学习参考使用,如侵犯您的权益,请联系我们处理。
不能下载?报告错误