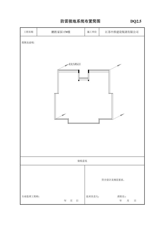
防雷接地系统布置简图通常包括以下关键组成部分:1.避雷针或避雷带(接闪器)安装在建筑物顶部用于吸引雷电;2.引下线将雷电电流从接闪器传导至接地装置;3.接地装置(接地极和接地网)埋设在地下用于将雷电流安全泄放入大地。系统布置需确保所有金属构件、设备外壳和管线等电位连接,接地电阻应符合规范要求(一般≤10Ω)。简图中应标明各部件尺寸、材料、连接方式及测试点位置。

防雷接地系统布置简图通常包括以下关键组成部分:1.避雷针或避雷带(接闪器)安装在建筑物顶部用于吸引雷电;2.引下线将雷电电流从接闪器传导至接地装置;3.接地装置(接地极和接地网)埋设在地下用于将雷电流安全泄放入大地。系统布置需确保所有金属构件、设备外壳和管线等电位连接,接地电阻应符合规范要求(一般≤10Ω)。简图中应标明各部件尺寸、材料、连接方式及测试点位置。

声明:资源收集自网络无法详细核验或存在错误,仅为个人学习参考使用,如侵犯您的权益,请联系我们处理。
不能下载?报告错误