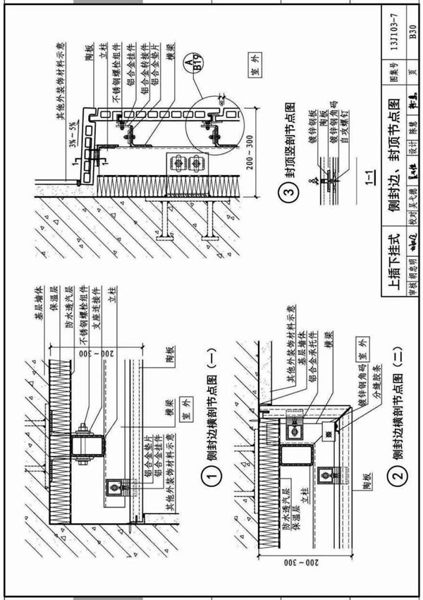
国家建筑标准设计图集13J103-7《人造板材幕墙》国标图集电子版第2部分主要针对人造板材幕墙的构造节点、安装工艺及细部处理进行了详细规定。该部分内容包含了各类人造板材(如铝塑复合板、纤维水泥板等)在不同建筑部位的应用节点详图,重点阐述了板材与主体结构的连接方式、接缝处理、防水构造以及保温隔热等技术要求。同时提供了典型幕墙系统的安装工艺流程和质量控制要点,为设计人员和施工方提供了标准化的技术依据。

国家建筑标准设计图集13J103-7《人造板材幕墙》国标图集电子版第2部分主要针对人造板材幕墙的构造节点、安装工艺及细部处理进行了详细规定。该部分内容包含了各类人造板材(如铝塑复合板、纤维水泥板等)在不同建筑部位的应用节点详图,重点阐述了板材与主体结构的连接方式、接缝处理、防水构造以及保温隔热等技术要求。同时提供了典型幕墙系统的安装工艺流程和质量控制要点,为设计人员和施工方提供了标准化的技术依据。

声明:资源收集自网络无法详细核验或存在错误,仅为个人学习参考使用,如侵犯您的权益,请联系我们处理。
不能下载?报告错误