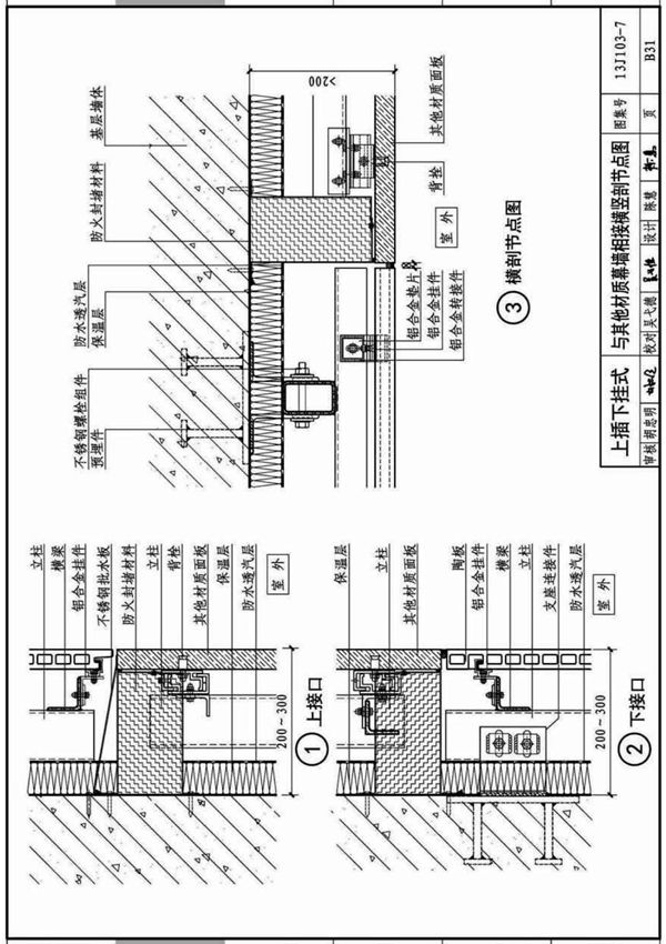
13J103-7《人造板材幕墙》国家建筑标准设计图集是针对建筑幕墙工程中人造板材应用的技术规范和图集。该图集详细规定了各类人造板材(如铝塑复合板、纤维水泥板、高压热固化木纤维板等)在幕墙系统中的设计、构造、安装及节点做法,适用于新建、改建和扩建的民用建筑与工业建筑。图集内容涵盖板材性能要求、连接构造、密封防水、保温隔热等关键技术要点,并提供了典型节点详图与施工说明,为工程设计、施工及验收提供标准化依据。电子版便于查阅和图纸调用,可有效提高设计效率与施工质量。

13J103-7《人造板材幕墙》国家建筑标准设计图集是针对建筑幕墙工程中人造板材应用的技术规范和图集。该图集详细规定了各类人造板材(如铝塑复合板、纤维水泥板、高压热固化木纤维板等)在幕墙系统中的设计、构造、安装及节点做法,适用于新建、改建和扩建的民用建筑与工业建筑。图集内容涵盖板材性能要求、连接构造、密封防水、保温隔热等关键技术要点,并提供了典型节点详图与施工说明,为工程设计、施工及验收提供标准化依据。电子版便于查阅和图纸调用,可有效提高设计效率与施工质量。

声明:资源收集自网络无法详细核验或存在错误,仅为个人学习参考使用,如侵犯您的权益,请联系我们处理。
不能下载?报告错误