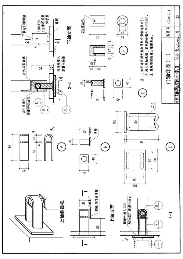
国标图集03J012-1《环境景观--室外工程细部构造》是建筑行业标准设计图集之一,主要针对室外环境景观工程的细部构造进行详细说明和图示。该图集包含了室外工程中常见的各类构造节点、材料做法、施工要求等内容,适用于景观设计师、施工人员及相关技术人员参考使用。图集内容涵盖铺装、台阶、坡道、挡墙、水景、围栏等多种室外工程细部构造,提供了标准化的设计解决方案,有助于保证工程质量,提高施工效率。

国标图集03J012-1《环境景观--室外工程细部构造》是建筑行业标准设计图集之一,主要针对室外环境景观工程的细部构造进行详细说明和图示。该图集包含了室外工程中常见的各类构造节点、材料做法、施工要求等内容,适用于景观设计师、施工人员及相关技术人员参考使用。图集内容涵盖铺装、台阶、坡道、挡墙、水景、围栏等多种室外工程细部构造,提供了标准化的设计解决方案,有助于保证工程质量,提高施工效率。

声明:资源收集自网络无法详细核验或存在错误,仅为个人学习参考使用,如侵犯您的权益,请联系我们处理。
不能下载?报告错误