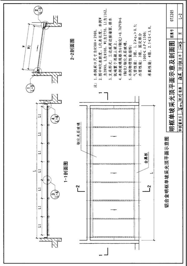
07J205玻璃采光顶图集是一套专门针对建筑玻璃采光顶设计的标准图集,适用于各类公共建筑、商业建筑及工业建筑的采光顶工程。该图集详细提供了玻璃采光顶的结构设计、节点构造、材料选用及施工工艺等内容,涵盖了多种形式的采光顶方案,如点支式、框架式及隐框式等。图集内容符合国家相关规范要求,可为设计、施工及验收提供技术参考,确保采光顶的安全性、防水性及美观性。

07J205玻璃采光顶图集是一套专门针对建筑玻璃采光顶设计的标准图集,适用于各类公共建筑、商业建筑及工业建筑的采光顶工程。该图集详细提供了玻璃采光顶的结构设计、节点构造、材料选用及施工工艺等内容,涵盖了多种形式的采光顶方案,如点支式、框架式及隐框式等。图集内容符合国家相关规范要求,可为设计、施工及验收提供技术参考,确保采光顶的安全性、防水性及美观性。
