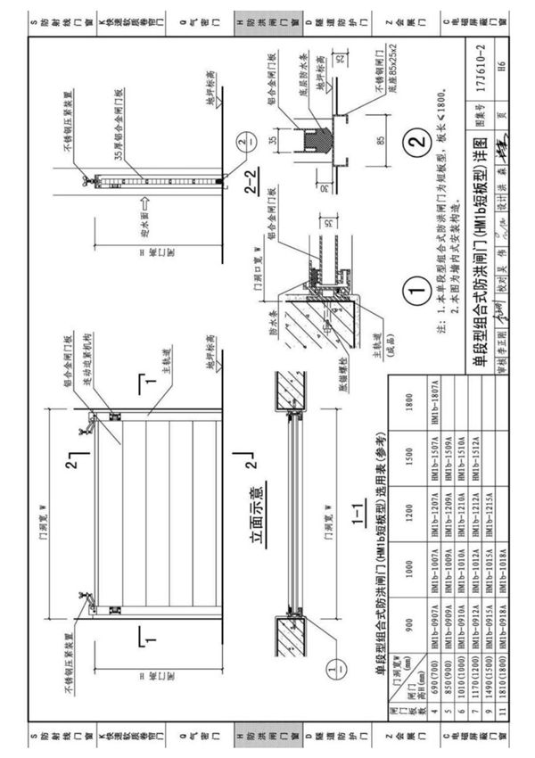
最新国标图集17J610-2《特种门窗(二)》是国家标准设计图集,主要针对各类特种门窗的设计、安装及施工要求进行了详细规定。该图集适用于工业与民用建筑中的防火门、防爆门、隔声门、保温门等特种门窗工程,内容包含门窗类型、构造详图、材料选用及节点大样等技术要求,是建筑设计、施工及验收的重要依据。电子版下载可方便工程技术人员随时查阅和使用。

最新国标图集17J610-2《特种门窗(二)》是国家标准设计图集,主要针对各类特种门窗的设计、安装及施工要求进行了详细规定。该图集适用于工业与民用建筑中的防火门、防爆门、隔声门、保温门等特种门窗工程,内容包含门窗类型、构造详图、材料选用及节点大样等技术要求,是建筑设计、施工及验收的重要依据。电子版下载可方便工程技术人员随时查阅和使用。

声明:资源收集自网络无法详细核验或存在错误,仅为个人学习参考使用,如侵犯您的权益,请联系我们处理。
不能下载?报告错误