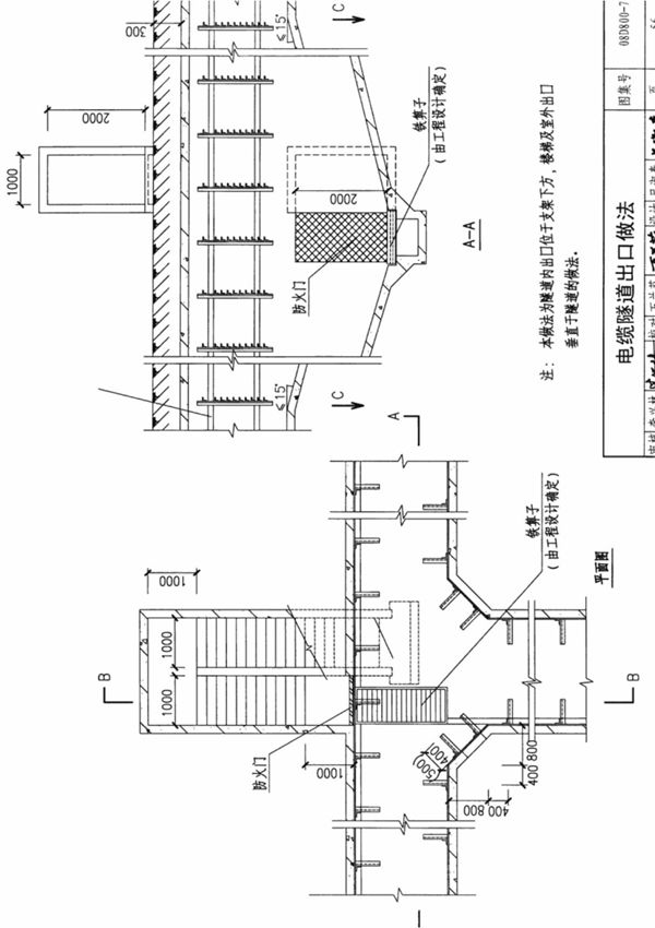
国家建筑标准设计图集08D800-7《民用建筑电气设计与施工室外布线》是由中国建筑标准设计研究院组织编制,经中华人民共和国住房和城乡建设部批准发布的电气专业标准图集。该图集主要针对民用建筑室外电气线路的设计与施工,详细规定了电缆敷设、线路保护、接地装置等室外电气布线的技术要求、施工工艺和节点详图。图集内容涵盖直埋、穿管、电缆沟等多种敷设方式,适用于新建、改建和扩建的民用建筑室外电气工程设计及施工参考。电子版可通过中国建筑标准设计研究院官方渠道或授权平台获取正版下载。

国家建筑标准设计图集08D800-7《民用建筑电气设计与施工室外布线》是由中国建筑标准设计研究院组织编制,经中华人民共和国住房和城乡建设部批准发布的电气专业标准图集。该图集主要针对民用建筑室外电气线路的设计与施工,详细规定了电缆敷设、线路保护、接地装置等室外电气布线的技术要求、施工工艺和节点详图。图集内容涵盖直埋、穿管、电缆沟等多种敷设方式,适用于新建、改建和扩建的民用建筑室外电气工程设计及施工参考。电子版可通过中国建筑标准设计研究院官方渠道或授权平台获取正版下载。

声明:资源收集自网络无法详细核验或存在错误,仅为个人学习参考使用,如侵犯您的权益,请联系我们处理。
不能下载?报告错误