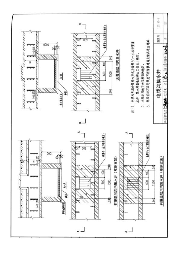
《110kV及以下电缆敷设》图集12D101-5是电力工程中电缆敷设的重要参考图集,主要针对110kV及以下电压等级的电缆敷设提供了详细的设计和施工指导。图集4部分重点介绍了电缆敷设的具体方法、技术要求及施工注意事项,包括直埋、排管、沟道、隧道等多种敷设方式的技术要点和图示说明。该图集适用于电力工程设计、施工及验收,确保电缆敷设的安全性和可靠性,符合国家相关标准和规范要求。

《110kV及以下电缆敷设》图集12D101-5是电力工程中电缆敷设的重要参考图集,主要针对110kV及以下电压等级的电缆敷设提供了详细的设计和施工指导。图集4部分重点介绍了电缆敷设的具体方法、技术要求及施工注意事项,包括直埋、排管、沟道、隧道等多种敷设方式的技术要点和图示说明。该图集适用于电力工程设计、施工及验收,确保电缆敷设的安全性和可靠性,符合国家相关标准和规范要求。

声明:资源收集自网络无法详细核验或存在错误,仅为个人学习参考使用,如侵犯您的权益,请联系我们处理。
不能下载?报告错误