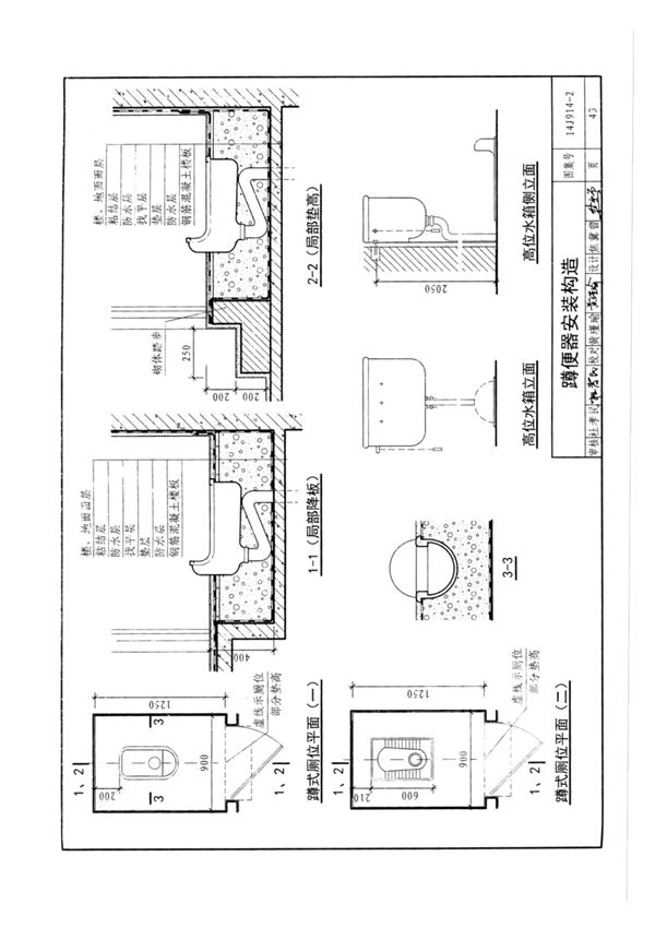
《国家建筑标准设计图集14J914-2住宅卫生间》是由中国建筑标准设计研究院组织编制,住房和城乡建设部批准发布的建筑行业标准图集。该图集适用于新建、改建和扩建的住宅卫生间设计,主要内容包括卫生间平面布置、设备安装、防水构造、管道布置等标准化设计详图和技术要求。图集编号14J914-2中的"14"代表2014年批准发布,"J"表示建筑专业标准图集,"914"是图集分类序号,"2"表示第二分册。该图集为建筑设计、施工、监理等单位提供了权威的技术依据,有助于规范住宅卫生间设计,提高施工质量,保障使用功能。图集内容系统全面,包含了不同面积标准的卫生间布置方案,详细绘制了卫生洁具安装、地漏设置、墙面防水等节点大样图,并注明了材料选用和施工工艺要求,是住宅卫生间设计施工的重要参考依据。
