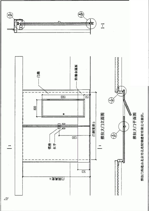
《国标图集01J925-1钢板夹芯板屋面及墙体建筑构造图集电子版》是一本国家建筑标准设计图集,主要针对钢板夹芯板在建筑屋面和墙体构造中的应用。该图集详细规定了夹芯板的材料性能、连接方式、节点构造以及施工工艺等技术要求,适用于工业与民用建筑的屋面和外墙工程。图集内容涵盖设计选用、构造详图、安装方法等,为工程设计、施工及验收提供了标准化依据,确保工程质量与安全。电子版便于携带和查阅,是建筑行业相关技术人员的重要参考资料。

《国标图集01J925-1钢板夹芯板屋面及墙体建筑构造图集电子版》是一本国家建筑标准设计图集,主要针对钢板夹芯板在建筑屋面和墙体构造中的应用。该图集详细规定了夹芯板的材料性能、连接方式、节点构造以及施工工艺等技术要求,适用于工业与民用建筑的屋面和外墙工程。图集内容涵盖设计选用、构造详图、安装方法等,为工程设计、施工及验收提供了标准化依据,确保工程质量与安全。电子版便于携带和查阅,是建筑行业相关技术人员的重要参考资料。

声明:资源收集自网络无法详细核验或存在错误,仅为个人学习参考使用,如侵犯您的权益,请联系我们处理。
不能下载?报告错误