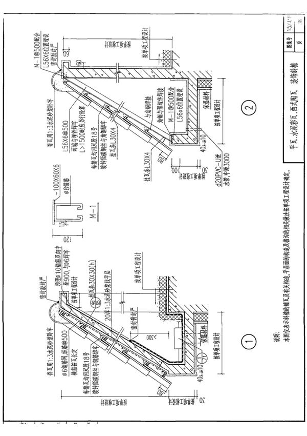
中南地区工程建设标准设计图集15ZJ211-坡屋面是一本针对中南地区坡屋面工程设计的标准图集。该图集由中南地区工程建设标准化办公室组织编制,主要适用于中南地区(包括湖北、湖南、河南、广东、广西、海南等省份)的民用与工业建筑坡屋面工程。图集内容涵盖了坡屋面的各种构造做法、细部节点、防水处理、保温隔热等技术要求,提供了标准化的设计图纸和施工详图。15ZJ211图集为设计单位、施工单位及监理单位提供了权威的技术参考依据,有助于保证坡屋面工程的质量和安全。该图集符合国家现行相关规范标准,结合中南地区的气候特点和工程实践经验编制,具有实用性和可操作性强的特点。如需电子版下载,建议通过正规渠道获取,如各省住建厅官网或标准出版机构。
