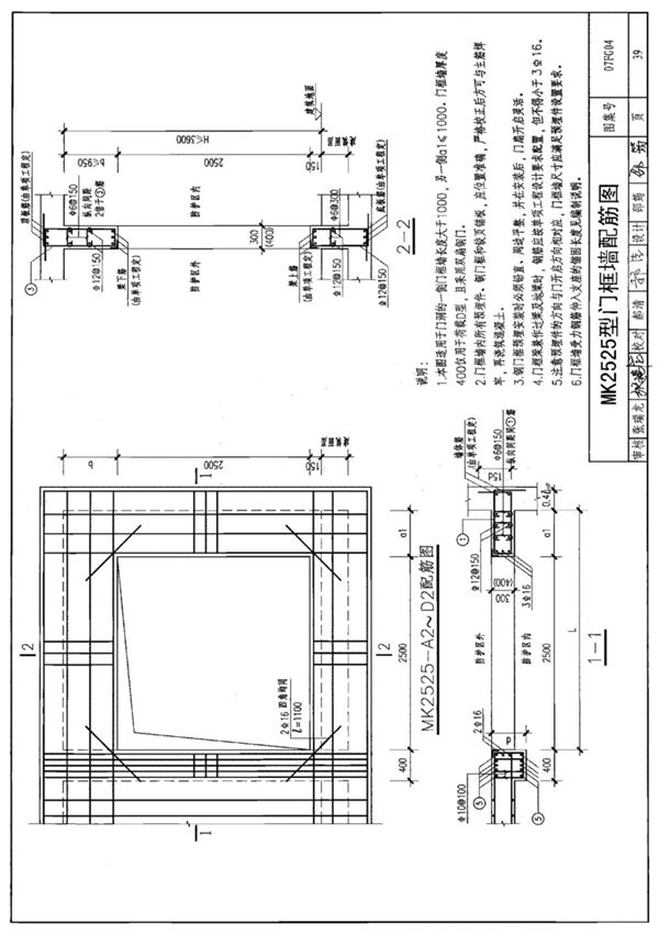
国家标准建筑设计图集07FG04《防空地下室移动柴油电站》是由中国建筑标准设计研究院组织编制的国家建筑标准设计图集。该图集主要针对防空地下室中移动柴油电站的设计与施工提供了详细的技术指导和标准化图纸。主要内容包括:1.移动柴油电站的平面布置图2.设备安装详图3.通风系统设计4.排烟系统设计5.电气系统设计6.隔振降噪措施7.相关构造节点详图该图集适用于新建、改建和扩建的防空地下室工程中移动柴油电站的设计与施工,为工程设计人员提供了标准化参考依据,有助于保证工程质量,提高设计效率。图集内容符合国家现行相关规范要求,具有权威性和实用性。
