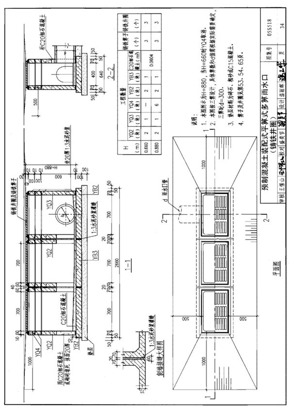
国家建筑标准设计图集05S518《雨水口》是由中国建筑标准设计研究院组织编制,经中华人民共和国住房和城乡建设部批准发布的建筑标准设计图集。该图集适用于我国城镇各类新建、扩建和改建的室外排水工程中雨水口的设计与施工。05S518图集主要内容包括:1.各类雨水口的选用说明及技术参数2.平箅式雨水口、立箅式雨水口、联合式雨水口等不同形式雨水口的构造详图3.雨水口与检查井的连接做法4.特殊部位雨水口的处理措施5.相关材料要求和施工安装要点该图集为工程技术人员提供了标准化的雨水口设计依据,对保证排水工程质量、提高设计效率具有重要作用。如需获取电子版,请通过正规渠道购买或咨询当地标准发行部门。
