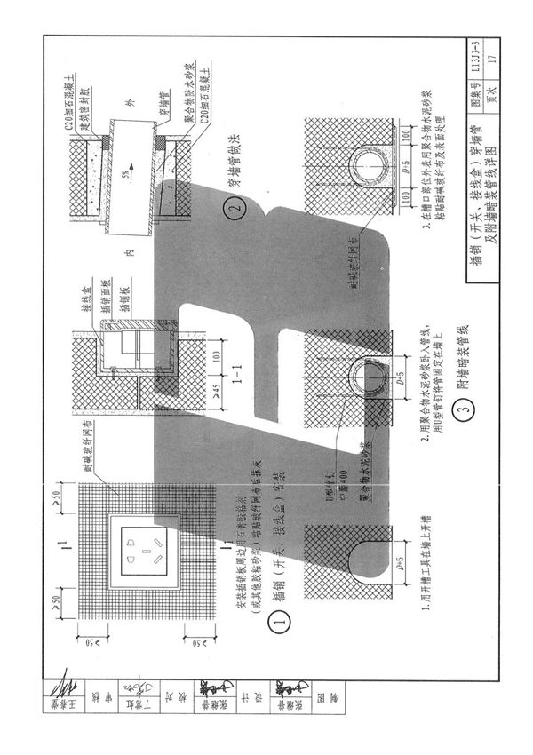
鲁L13J3-3是山东省建筑标准设计图集中的一部分,专门针对加气混凝土砌块墙的设计与施工提供详细的技术规范和标准图集。该图集涵盖了加气混凝土砌块墙的材料要求、构造做法、节点详图以及施工要点等内容,适用于山东省内各类建筑工程中加气混凝土砌块墙的设计与施工。通过该图集,设计人员、施工单位和监理单位可以准确掌握加气混凝土砌块墙的技术标准,确保工程质量符合规范要求。如需下载电子版,建议通过山东省住房和城乡建设厅官网或相关标准发布平台查询获取。

鲁L13J3-3是山东省建筑标准设计图集中的一部分,专门针对加气混凝土砌块墙的设计与施工提供详细的技术规范和标准图集。该图集涵盖了加气混凝土砌块墙的材料要求、构造做法、节点详图以及施工要点等内容,适用于山东省内各类建筑工程中加气混凝土砌块墙的设计与施工。通过该图集,设计人员、施工单位和监理单位可以准确掌握加气混凝土砌块墙的技术标准,确保工程质量符合规范要求。如需下载电子版,建议通过山东省住房和城乡建设厅官网或相关标准发布平台查询获取。

声明:资源收集自网络无法详细核验或存在错误,仅为个人学习参考使用,如侵犯您的权益,请联系我们处理。
不能下载?报告错误