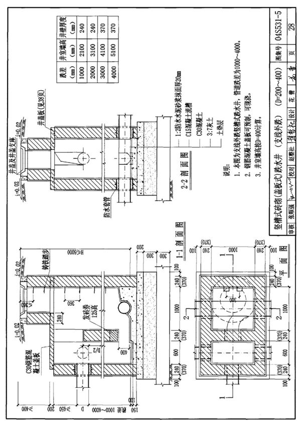
最新国家建筑标准设计图集04S531-5《湿陷性黄土地区排水检查井》是针对湿陷性黄土地区排水工程设计的专用图集。该图集由住房和城乡建设部批准发布,适用于湿陷性黄土地区的室外排水检查井设计与施工。主要内容包括:1.湿陷性黄土地区排水检查井的标准化设计2.不同管径、不同深度的检查井结构详图3.特殊地基处理措施4.防渗漏、防沉降的构造做法5.材料选用及施工技术要求该图集为湿陷性黄土地区排水检查井工程提供了标准化的设计依据,可有效解决湿陷性黄土地基可能引起的检查井沉降、渗漏等问题,确保排水系统的安全可靠运行。如需获取电子版,建议通过正规渠道购买或向当地建设主管部门咨询。
