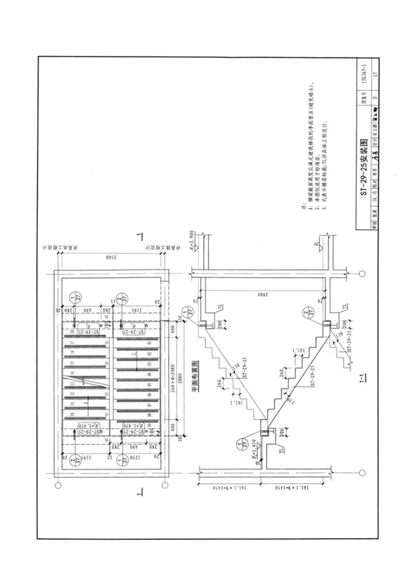
《15G367-1预制钢筋混凝土板式楼梯》是国家建筑标准设计图集之一,由住房和城乡建设部组织编制并批准发布。该图集适用于抗震设防烈度8度及以下地区的民用与工业建筑,主要针对预制钢筋混凝土板式楼梯的设计、制作与安装提供标准化指导。图集内容包含楼梯梯段板、平台板等预制构件的规格尺寸、配筋构造、连接节点详图及施工要求,采用统一模数协调,便于工业化生产与装配化施工。其设计符合《混凝土结构设计规范》(GB50010)等现行标准,具有以下特点:1.提供多种荷载等级下的选用表2.明确预制构件与主体结构的连接方式3.包含抗震构造措施及施工注意事项该图集为建筑、结构专业设计人员及施工单位的标准依据,可有效提高楼梯设计效率,保证工程质量,推动建筑工业化发展。如需获取电子版,建议通过中国建筑标准设计研究院官网或正规渠道购买正版。
