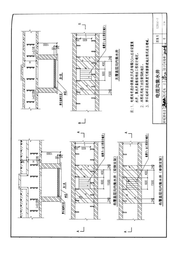
国家建筑标准设计图集12D101-5《110kV及以下电缆敷设》图集41部分主要针对110kV及以下电压等级电力电缆的敷设方式、施工工艺及技术要求进行详细说明。本部分内容涵盖了电缆直埋、排管、沟槽、隧道等多种敷设方式的典型设计,提供了标准化的施工节点详图和技术参数,适用于工业与民用建筑电气工程中电缆线路的敷设设计与施工。图集依据现行国家规范编制,注重实用性和可操作性,为电气设计人员、施工人员及监理单位提供了权威的技术参考依据。

国家建筑标准设计图集12D101-5《110kV及以下电缆敷设》图集41部分主要针对110kV及以下电压等级电力电缆的敷设方式、施工工艺及技术要求进行详细说明。本部分内容涵盖了电缆直埋、排管、沟槽、隧道等多种敷设方式的典型设计,提供了标准化的施工节点详图和技术参数,适用于工业与民用建筑电气工程中电缆线路的敷设设计与施工。图集依据现行国家规范编制,注重实用性和可操作性,为电气设计人员、施工人员及监理单位提供了权威的技术参考依据。
