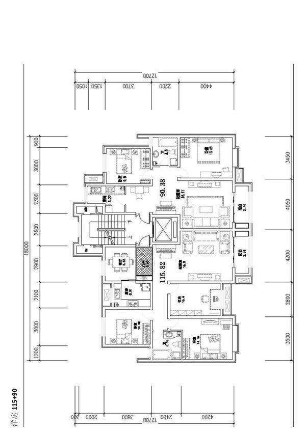
这是一套精心设计的户型图,展示了房屋的整体布局和空间规划。户型图详细标注了各个功能区域的位置和尺寸,包括客厅、卧室、厨房、卫生间等主要生活空间。通过这张图纸,您可以清晰了解房屋的朝向、采光情况以及动线设计,帮助您更好地评估居住舒适度和实用性。
声明:本站为网络服务提供者及网络索引服务平台资源索引自网络/用户分享,如有版权问题,请联系我们删除。