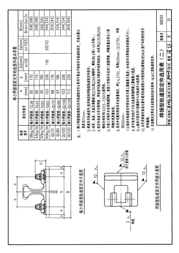
国标图集05G525《吊车轨道联结及车挡》是国家建筑标准设计图集之一,主要针对工业厂房及类似建筑中吊车轨道的安装、联结及车挡设计提供了详细的技术规范和标准图样。该图集涵盖了吊车轨道的类型选择、轨道与轨道的联结方式、轨道与厂房的固定方法以及车挡的设计与安装等内容,适用于各类工业建筑中吊车轨道的设计与施工。图集内容系统全面,包含了轨道联结的节点详图、材料规格、安装要求及车挡的构造细节,为工程设计、施工及验收提供了可靠的技术依据。通过采用该图集,可确保吊车轨道系统的安全性、稳定性和耐久性,同时提高施工效率和质量。如需下载电子版,建议通过正规渠道获取,如国家建筑标准设计官方网站或授权平台,以确保文件的准确性和合法性。
