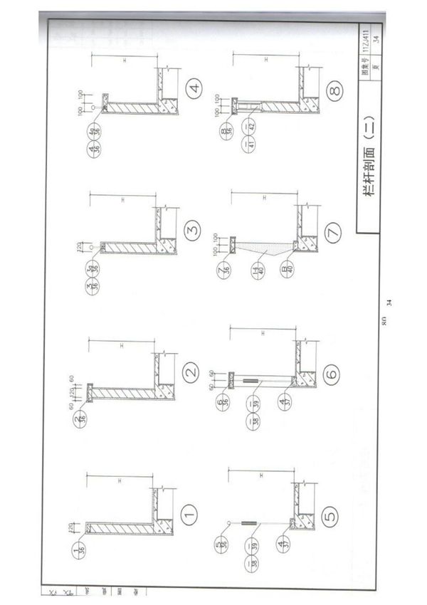
《最新建筑结构施工图集11ZJ411》是一套广泛应用于建筑工程领域的标准图集,主要针对建筑结构施工中的各类节点、构造做法及技术要求进行详细图示和说明。该图集依据现行国家规范编制,内容涵盖混凝土结构、钢结构、砌体结构等常见建筑形式的施工详图,为设计、施工及监理人员提供标准化参考依据。电子版图集便于携带和查阅,支持关键词检索,可快速定位所需节点做法,显著提高工作效率。适用于民用与工业建筑的结构施工,尤其对复杂节点处理、抗震构造措施等具有重要指导意义。下载时请注意核对版本号,确保与现行规范同步更新。

《最新建筑结构施工图集11ZJ411》是一套广泛应用于建筑工程领域的标准图集,主要针对建筑结构施工中的各类节点、构造做法及技术要求进行详细图示和说明。该图集依据现行国家规范编制,内容涵盖混凝土结构、钢结构、砌体结构等常见建筑形式的施工详图,为设计、施工及监理人员提供标准化参考依据。电子版图集便于携带和查阅,支持关键词检索,可快速定位所需节点做法,显著提高工作效率。适用于民用与工业建筑的结构施工,尤其对复杂节点处理、抗震构造措施等具有重要指导意义。下载时请注意核对版本号,确保与现行规范同步更新。

声明:资源收集自网络无法详细核验或存在错误,仅为个人学习参考使用,如侵犯您的权益,请联系我们处理。
不能下载?报告错误