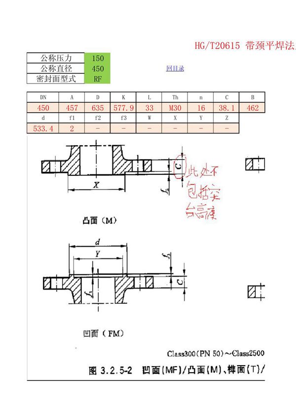
HGT20615-2009是中国化工行业标准中的一项重要标准,全称为《钢制管法兰、垫片、紧固件》。该标准主要规定了钢制管法兰的类型、尺寸、技术要求、试验方法、检验规则以及标志、包装、运输和贮存等方面的内容。HGT20615-2009适用于化工、石油、天然气及其他工业管道系统中使用的钢制管法兰、垫片和紧固件。该标准与国际通用的美标(ANSI/ASMEB16.5)和欧标(EN1092-1)有一定的对应关系,但在某些技术要求和尺寸上有所调整,以适应国内工程应用的需求。该标准对法兰的压力等级、密封面形式、材料选择等进行了详细规定,确保法兰连接的可靠性、密封性和互换性,广泛应用于化工装置、炼油厂、长输管道等工程项目中。
