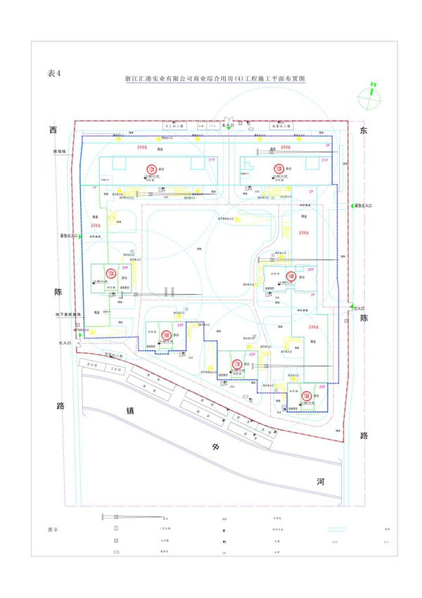
表4施工总平面布置图及临时用地表(临时用地表)主要用于详细规划和展示施工期间各类临时设施的平面布置情况。该表列出了施工所需临时用地的具体位置、面积、用途及使用期限,确保施工过程中场地利用合理、高效,同时满足相关法规和环保要求。通过该表,可以清晰了解临时设施如办公区、材料堆放区、加工区、生活区等的分布情况,为施工组织和管理提供依据。

表4施工总平面布置图及临时用地表(临时用地表)主要用于详细规划和展示施工期间各类临时设施的平面布置情况。该表列出了施工所需临时用地的具体位置、面积、用途及使用期限,确保施工过程中场地利用合理、高效,同时满足相关法规和环保要求。通过该表,可以清晰了解临时设施如办公区、材料堆放区、加工区、生活区等的分布情况,为施工组织和管理提供依据。
