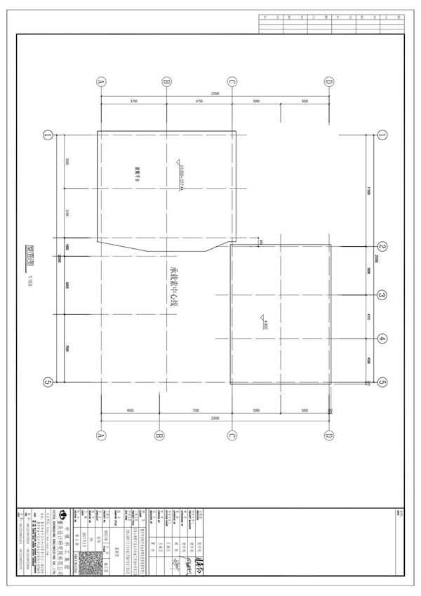
04屋面图主要展示建筑物的屋顶平面布局、构造做法及细部节点。图纸包含屋面排水坡度、分水线位置、天沟及落水管布置,同时标注屋面材料、防水层做法、保温层厚度等关键信息。对于出屋面构件(如烟道、通风管、女儿墙等)会明确其定位尺寸与收口处理。该图需结合建筑剖面图核对屋面标高,并与结构专业协调设备基础荷载要求。施工时应注意屋面泛水、变形缝等细部防水节点按大样图施工。

04屋面图主要展示建筑物的屋顶平面布局、构造做法及细部节点。图纸包含屋面排水坡度、分水线位置、天沟及落水管布置,同时标注屋面材料、防水层做法、保温层厚度等关键信息。对于出屋面构件(如烟道、通风管、女儿墙等)会明确其定位尺寸与收口处理。该图需结合建筑剖面图核对屋面标高,并与结构专业协调设备基础荷载要求。施工时应注意屋面泛水、变形缝等细部防水节点按大样图施工。
