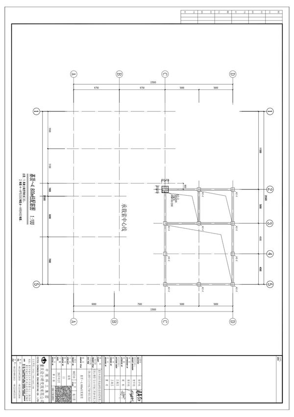
本配筋图适用于11根基顶标高为4.800米的立柱结构设计。图纸详细标注了立柱的钢筋配置信息,包括主筋规格、数量、布置方式,箍筋间距、直径等关键参数。所有钢筋均采用HRB400级螺纹钢,混凝土强度等级为C30。图中明确了钢筋锚固长度、搭接位置及保护层厚度等构造要求,并提供了与基础及上部结构的连接节点详图。施工时须严格按照本图配筋,确保立柱承载能力满足设计要求。

本配筋图适用于11根基顶标高为4.800米的立柱结构设计。图纸详细标注了立柱的钢筋配置信息,包括主筋规格、数量、布置方式,箍筋间距、直径等关键参数。所有钢筋均采用HRB400级螺纹钢,混凝土强度等级为C30。图中明确了钢筋锚固长度、搭接位置及保护层厚度等构造要求,并提供了与基础及上部结构的连接节点详图。施工时须严格按照本图配筋,确保立柱承载能力满足设计要求。

声明:资源收集自网络无法详细核验或存在错误,仅为个人学习参考使用,如侵犯您的权益,请联系我们处理。
不能下载?报告错误