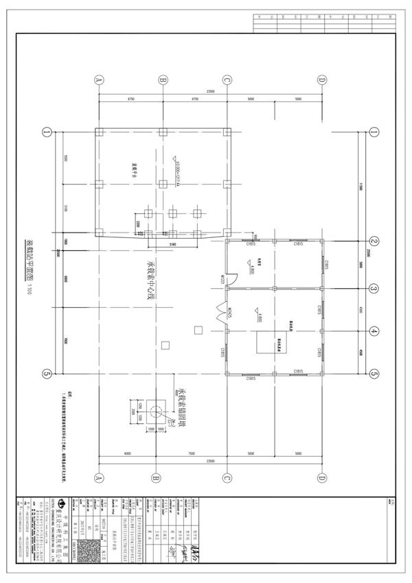
03装载站平面图展示了该装载站的整体布局和功能分区。图纸详细标注了各区域的位置关系、设备配置及作业流程动线,包括货物存放区、装载作业区、车辆通道、操作控制室等关键部分。设计严格遵循行业安全规范,确保物流效率最大化。图纸采用标准工程制图规范,比例精确,所有尺寸标注清晰,为施工建设和日常运营管理提供了可靠依据。

03装载站平面图展示了该装载站的整体布局和功能分区。图纸详细标注了各区域的位置关系、设备配置及作业流程动线,包括货物存放区、装载作业区、车辆通道、操作控制室等关键部分。设计严格遵循行业安全规范,确保物流效率最大化。图纸采用标准工程制图规范,比例精确,所有尺寸标注清晰,为施工建设和日常运营管理提供了可靠依据。

声明:资源收集自网络无法详细核验或存在错误,仅为个人学习参考使用,如侵犯您的权益,请联系我们处理。
不能下载?报告错误