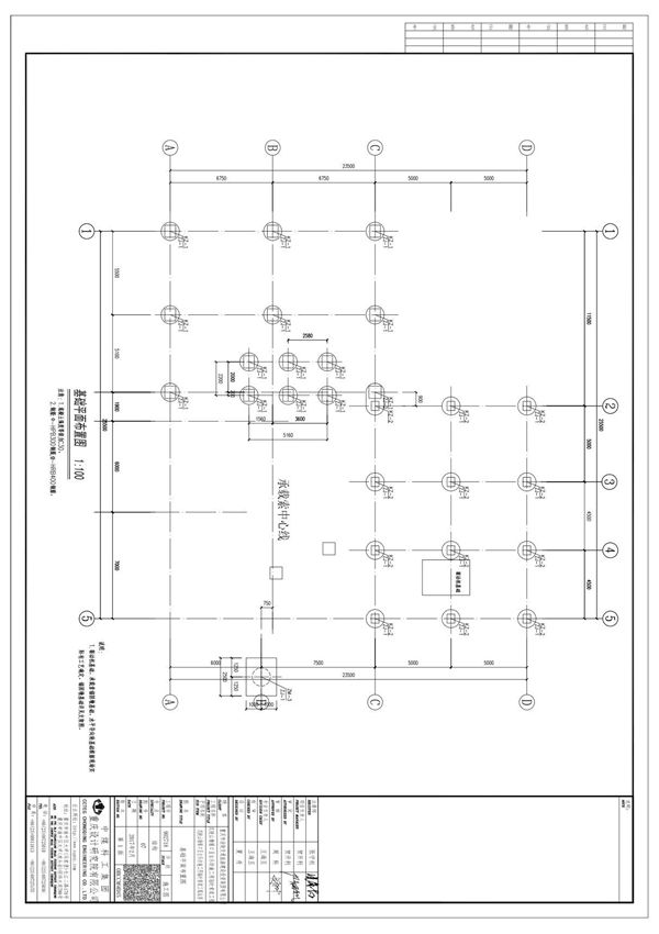
07基础平面布置图是本工程的基础结构设计图纸,主要展示建筑物基础部分的平面布置情况。该图纸详细标注了基础构件的定位尺寸、类型、规格及相互关系,包括独立基础、条形基础、筏板基础等不同基础形式的布置位置。图纸内容包含基础轴线定位、基础轮廓线、基础编号、尺寸标注、标高信息以及相关构造详图索引等关键信息。施工人员可根据该图纸进行基础放线、开挖及混凝土浇筑工作,确保基础施工的准确性和结构安全性。本图纸需与结构设计说明、基础详图等配套图纸结合使用,施工前应仔细核对各专业图纸,确保与其他专业(如给排水、电气等)的预留预埋位置无冲突。
