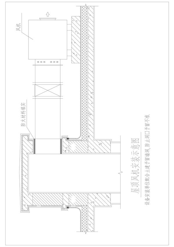
屋顶风机安装示意图是一种详细的视觉指导工具,用于展示屋顶风机的正确安装步骤和关键组件位置。该示意图通常包括风机主体、支架、防水层、固定螺栓、电源接线等主要部件的安装位置和连接方式。示意图会标注必要的尺寸、角度和间距要求,确保安装符合安全标准和性能规范。安装人员可以根据示意图了解风机的水平校正方法、防雨措施以及电气连接要点,避免常见安装错误。示意图还可能包含不同屋顶类型(如平顶、斜顶)的安装差异说明,以及维护通道预留等注意事项,为安装工程提供全面参考。

屋顶风机安装示意图是一种详细的视觉指导工具,用于展示屋顶风机的正确安装步骤和关键组件位置。该示意图通常包括风机主体、支架、防水层、固定螺栓、电源接线等主要部件的安装位置和连接方式。示意图会标注必要的尺寸、角度和间距要求,确保安装符合安全标准和性能规范。安装人员可以根据示意图了解风机的水平校正方法、防雨措施以及电气连接要点,避免常见安装错误。示意图还可能包含不同屋顶类型(如平顶、斜顶)的安装差异说明,以及维护通道预留等注意事项,为安装工程提供全面参考。

声明:资源收集自网络无法详细核验或存在错误,仅为个人学习参考使用,如侵犯您的权益,请联系我们处理。
不能下载?报告错误