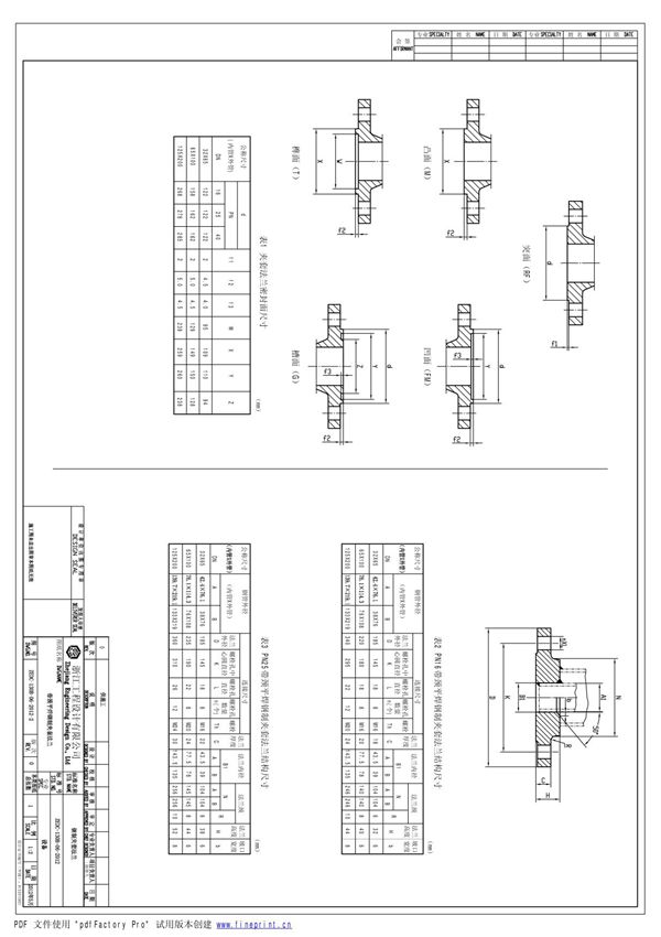
夹套法兰标准图简介夹套法兰是一种特殊结构的法兰,主要用于需要加热或冷却的管道系统中。其设计特点是在法兰外部增加一个夹套层,通过夹套内流动的介质(如蒸汽、导热油或冷却水)来实现对管道内介质的温度控制。夹套法兰标准图是根据相关行业规范(如HG/T、ASME、DIN等)绘制的技术图纸,详细标注了法兰的尺寸、材质、压力等级、连接方式及夹套结构等关键参数。这些图纸为设计、制造、安装和维护提供了统一的技术依据,确保夹套法兰在化工、制药、食品等行业中安全可靠地使用。标准图通常包括法兰的平面图、剖面图、尺寸表及技术要求,帮助用户准确理解产品规格并指导生产加工。
