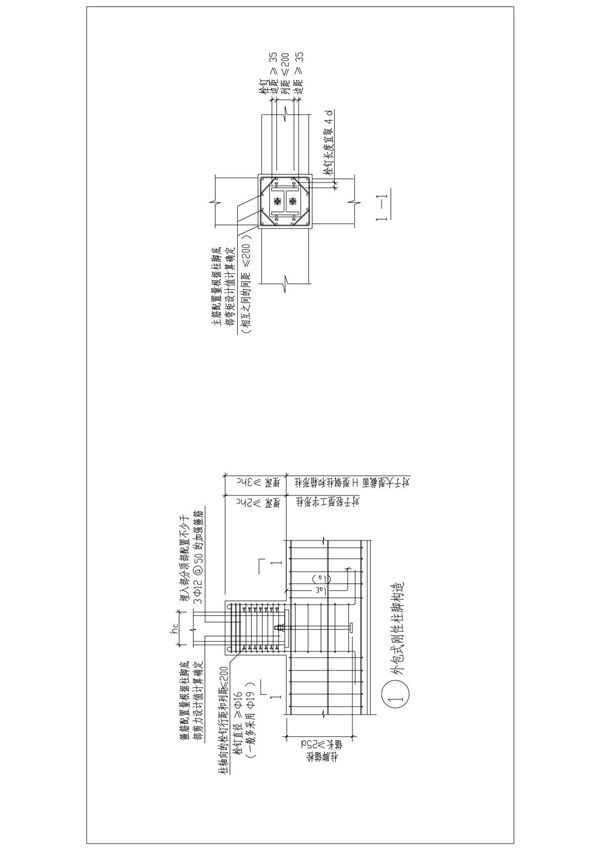
外包式刚性柱脚构造示意图展示了钢结构柱脚的一种常见连接方式。该构造通过将钢柱底部完全包裹在混凝土基础中,形成刚性连接,确保柱脚能有效传递弯矩和剪力。示意图通常包括钢柱、锚栓、外包混凝土、基础梁等关键部件,并标注尺寸和材料要求。这种构造能提高节点刚度和抗震性能,适用于需要承受较大弯矩的柱脚连接场合。

外包式刚性柱脚构造示意图展示了钢结构柱脚的一种常见连接方式。该构造通过将钢柱底部完全包裹在混凝土基础中,形成刚性连接,确保柱脚能有效传递弯矩和剪力。示意图通常包括钢柱、锚栓、外包混凝土、基础梁等关键部件,并标注尺寸和材料要求。这种构造能提高节点刚度和抗震性能,适用于需要承受较大弯矩的柱脚连接场合。
