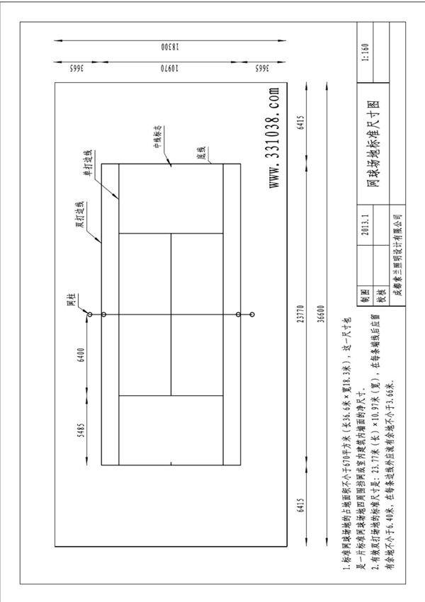
网球场地标准尺寸图展示了网球比赛场地的精确测量规格。根据国际网球联合会(ITF)的规定,单打场地的长度为23.77米(78英尺),宽度为8.23米(27英尺)。双打场地的宽度为10.97米(36英尺)。场地两侧的发球区长度为6.40米(21英尺),网高在中心处为0.914米(3英尺),在网柱处为1.07米(3.5英尺)。标准尺寸图还包括边线、底线、发球线和中线的位置,确保场地符合比赛要求。这些规格适用于所有正式比赛,为球员和裁判提供准确的参考依据。

网球场地标准尺寸图展示了网球比赛场地的精确测量规格。根据国际网球联合会(ITF)的规定,单打场地的长度为23.77米(78英尺),宽度为8.23米(27英尺)。双打场地的宽度为10.97米(36英尺)。场地两侧的发球区长度为6.40米(21英尺),网高在中心处为0.914米(3英尺),在网柱处为1.07米(3.5英尺)。标准尺寸图还包括边线、底线、发球线和中线的位置,确保场地符合比赛要求。这些规格适用于所有正式比赛,为球员和裁判提供准确的参考依据。

声明:资源收集自网络无法详细核验或存在错误,仅为个人学习参考使用,如侵犯您的权益,请联系我们处理。
不能下载?报告错误