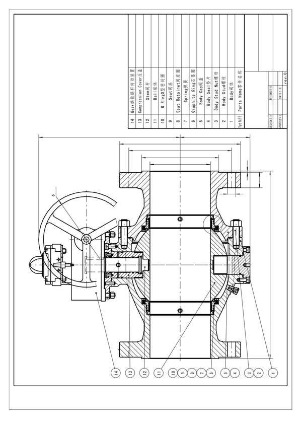
球阀(大尺寸)是一种常用于管道系统中的流体控制设备,主要用于截断或调节介质流动。其结构主要由阀体、球体、阀座、阀杆和驱动装置等关键部件组成。大尺寸球阀通常适用于高压、大口径的工业管道,如石油、天然气、化工等领域。主要结构特点:1.阀体:通常采用铸造或锻造工艺,材质多为碳钢、不锈钢等,确保强度和耐腐蚀性。2.球体:核心部件,表面经过精密加工,确保密封性能,通常为浮动式或固定式设计。3.阀座:采用弹性材料(如PTFE)或金属密封,保证阀门在高压下的密封效果。4.阀杆:连接驱动装置和球体,传递操作扭矩,通常带有防吹出设计。5.驱动装置:可选手动、电动、气动或液动方式,满足不同工况需求。大尺寸球阀的优势包括流阻小、密封性好、操作力矩大,适用于严苛工况。其结构设计需考虑强度、密封性和操作便利性,确保长期稳定运行。
