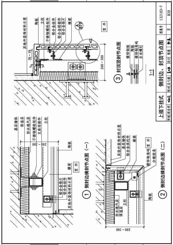
13J103-7《人造板材幕墙》建筑标准设计图集是国家建筑标准设计图集系列中的最新版本,主要针对人造板材幕墙的设计、施工和验收提供了详细的技术要求和标准做法。该图集适用于各类民用建筑和工业建筑中的人造板材幕墙工程,内容涵盖材料选用、构造节点、安装工艺及质量控制等方面,为工程设计、施工和监理人员提供了权威的技术依据。电子版下载方便专业人员随时查阅和使用,确保工程符合国家标准要求。

13J103-7《人造板材幕墙》建筑标准设计图集是国家建筑标准设计图集系列中的最新版本,主要针对人造板材幕墙的设计、施工和验收提供了详细的技术要求和标准做法。该图集适用于各类民用建筑和工业建筑中的人造板材幕墙工程,内容涵盖材料选用、构造节点、安装工艺及质量控制等方面,为工程设计、施工和监理人员提供了权威的技术依据。电子版下载方便专业人员随时查阅和使用,确保工程符合国家标准要求。

声明:资源收集自网络无法详细核验或存在错误,仅为个人学习参考使用,如侵犯您的权益,请联系我们处理。
不能下载?报告错误