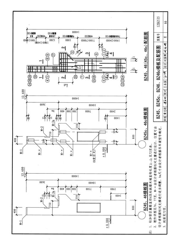
国标图集12SG535《实腹钢梁混凝土柱国家建筑标准设计图集》是针对实腹钢梁与混凝土柱组合结构的设计与施工编制的国家标准图集。该图集详细规定了实腹钢梁与混凝土柱连接节点的构造要求、材料选用、施工工艺及质量验收标准,适用于工业与民用建筑中采用此类组合结构的工程设计。图集内容包含节点详图、连接件规格、焊缝要求以及混凝土浇筑等关键技术要点,为设计人员和施工单位提供了权威的技术依据和标准化做法,确保结构安全可靠并满足抗震性能要求。

国标图集12SG535《实腹钢梁混凝土柱国家建筑标准设计图集》是针对实腹钢梁与混凝土柱组合结构的设计与施工编制的国家标准图集。该图集详细规定了实腹钢梁与混凝土柱连接节点的构造要求、材料选用、施工工艺及质量验收标准,适用于工业与民用建筑中采用此类组合结构的工程设计。图集内容包含节点详图、连接件规格、焊缝要求以及混凝土浇筑等关键技术要点,为设计人员和施工单位提供了权威的技术依据和标准化做法,确保结构安全可靠并满足抗震性能要求。

声明:资源收集自网络无法详细核验或存在错误,仅为个人学习参考使用,如侵犯您的权益,请联系我们处理。
不能下载?报告错误