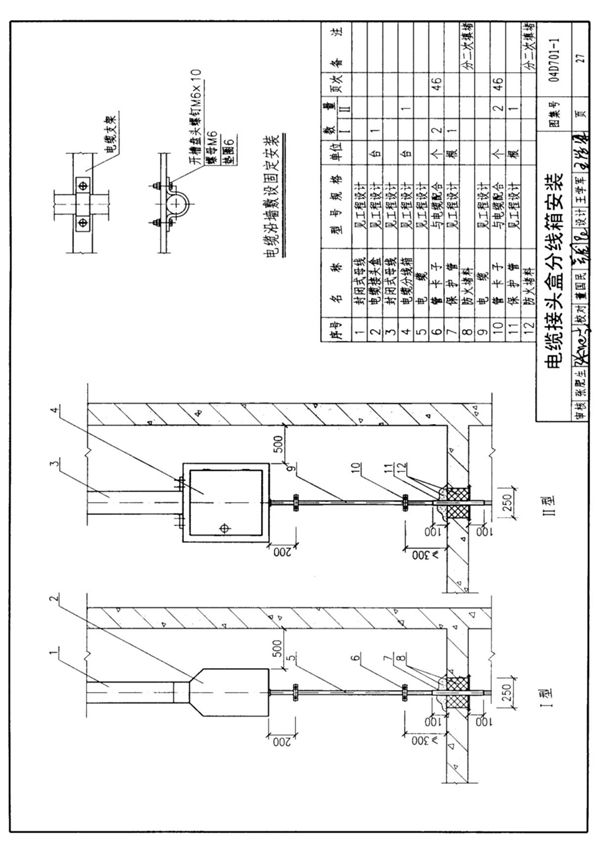
国家建筑标准设计图集04D701-1国标图集电子版PART2是中国建筑标准设计研究院编制的电气安装工程标准图集的一部分。该图集主要针对电气安装工程中的电缆桥架安装、线槽配线及相关设备安装等内容提供了详细的设计规范和施工指导。PART2部分重点包括:1.电缆桥架在不同环境下的安装方式2.各种规格线槽的安装技术要求3.特殊部位(如伸缩缝、穿墙等)的处理方法4.相关配套附件的选用与安装本图集适用于工业与民用建筑电气安装工程,为设计、施工、监理人员提供了标准化的技术依据,确保电气安装工程的质量和安全。图集内容符合国家现行电气设计规范要求,具有权威性和实用性。(注意:此为对标准图集的介绍说明,实际使用时应以正式出版的标准图集内容为准)
